TWL Wärmepumpen-Schichtspeicher WP 400 - 1000 Ltr.
mit Schichtleitkrempe
Johann-Gottfried-Galle-Straße 1
06773 Gräfenhainichen
Telefon: 034953-33673
Email: info@allner-haustechnik.net
mit Schichtleitkrempe
|
Frachtkosten innerhalb Deutschland
(ausser Inseln) |
| ||||
|
Aufschlag für Fracht Österreich, Belgien, Niederlande |
je
je |
bis 1000 Liter
bis 2000 Liter |
auf Anfrage!
auf Anfrage! |
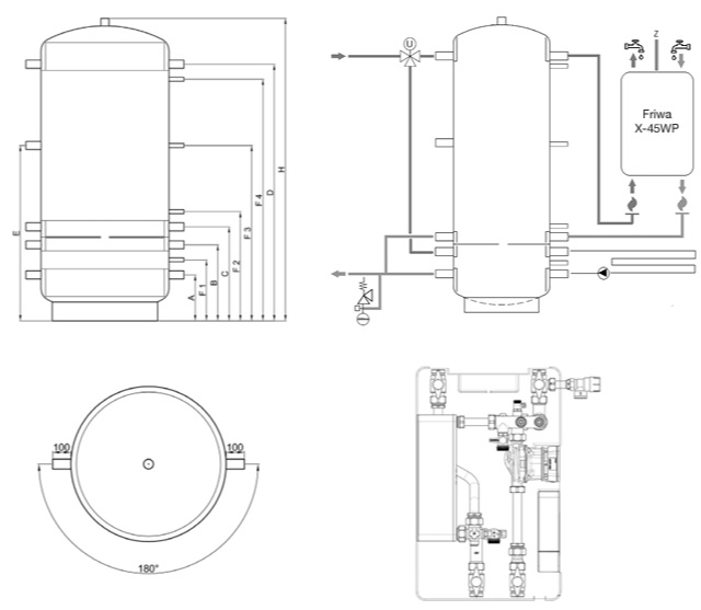
Der Wärmepumpen-Schichtspeicher mit Schichtleitkrempe® ist in zwei Bereiche unterteilt und so konzipiert, dass der obere Bereich für die Brauchwassererwärmung vorgesehen ist, welcher in Verbindung mit der leistungsfähigen Frischwasserstation X-45WP z.B. auch noch bei 45°C Speichertemperatur hohe Warmwasser-Leistungswerte erzielt. Der untere Bereich ist für die Fußbodenheizung als Puffervolumen und hydraulische Weiche vorgesehen, welcher je nach Flächenheizung mit 30-35°C beladen werden kann. Der Wärmepumpen-Schichtspeicher mit Schichtleitkrempe® in Verbindung mit der Frischwasserstation X-45WP nutzt effizient niedrige Temperaturen, verringert durch den Pufferteil die Taktzeiten der Wärmepumpe und bietet Betriebssicherheit durch die hydraulische Weiche. Wir bieten diesen Speicher in der Verkleidungsfarbe Weiß mit Isolierungen der Effizienzklasse A und B an.

(Spektrum A+ bis F)

| Herstellerinformationen | |
| TWL-Technologie GmbH | |
| Im Gewerbegebiet 2 - 12 | |
| D-92271 Freihung | Web: https://www.twl-technologie.de |
| Deutschland |
