Solarfocus Pelletskessel ecoPELL 90 - 120 kW
90 bis 120 kW
Johann-Gottfried-Galle-Straße 1
06773 Gräfenhainichen
Telefon: 034953-33673
Email: info@allner-haustechnik.net
90 bis 120 kW
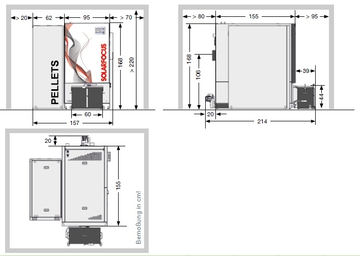
Pelletkessel ecoPELL Pelletskessel mit automatischem Multi-Kipprost, Hochtemperatur-Siliziumkarbid-Brennkammer, Lambdasonde und optional mit Zero Emission Technology. Automatische Zündung über Glühstab, drehzahlgeregeltes hocheffizientes Saugzuggebläse, automatische Wärmetauscher-Reinigung und automatische Ascheaustragung in eine Aschenbox. Abgasrezirkulation serienmässig integriert. Inkl. Pellets-Zwischenbehälter mit Saugturbine und patentierter Einachs-Zellradschleuse. Integrierte Rücklaufanhebung mit Mischermotor und Hocheffizienzpumpe. Zur Verfeuerung von Pellets gemäss EN ISO 17225-2, Klasse A1. Zero Emission Technology: Der ecoPELL zero verfügt serienmässig über einen elektrostatischen Feinstaubabscheider, der feinste Partikel aus dem Abgas entfernt. Durch eine Hochspannung von bis zu 30 kV werden die Partikel ionisiert und an den Abscheideflächen im Kessel abgeschieden. Klare Bedienung für das gesamte Heizsystem: 7"-Touchscreen-Regelung ecomanager-touch inkl. witterungsgeführter Heizkreisregelung für 1 Heizkreis, 1 Trinkwasserladekreise und 1 Pufferladeregelung inkl. Fühler. Smart-Home-Einbindung: Die integrierten LAN- und ModBus-TCP-Schnittstellen ermöglichen eine einfache Einbindung in gängige Smart-Home-Systeme. Über einen Konverter kann das System zusätzlich in KNX-Steuerungen integriert werden. Die wichtigsten Betriebsdaten sind über die mySOLARFOCUS-App jederzeit abrufbar – optional auch mit Vollzugriff über SOLARFOCUS-Connect. |


(Verbundlabel A+++ bis G)
| Herstellerinformationen | |
| Solarfocus GmbH | |
| Marie-Curie-Str. 14-16 | Mail: office@solarfocus.de |
| D-64653 Lorsch | Web: https://solarfocus.com/de |
| Deutschland |
