Tabs

 
  Innerhalb Deutschlands (ausser Inseln) frachtfrei!
 
 
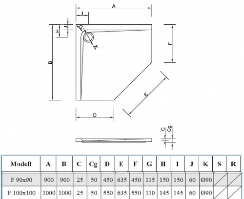
Duschwanne Arenal F 100 x 100
aus Sanitäracryl
 
 
Länge:
Breite:  
Tiefe:
Eckseiten: 
100
100
2,5
55 / 63,5 / 55
cm
cm
cm
cm
Ablauf:
90
 
 
 Duschwanne Arenal F
 
 

Herstellerinformationen

 

Schröder Wannentechnik GmbH

Zinkstraße 7

Mail: info@schroeder-wannentechnik.de

33378 Rheda-Wiedenbrück

Kontakt

Deutschland

 

 
6-Punkt-Duschwannenfuß
Ablauf 90 mm
HP27C-PB Ablauf 90 mm
Styroporwannenträger